

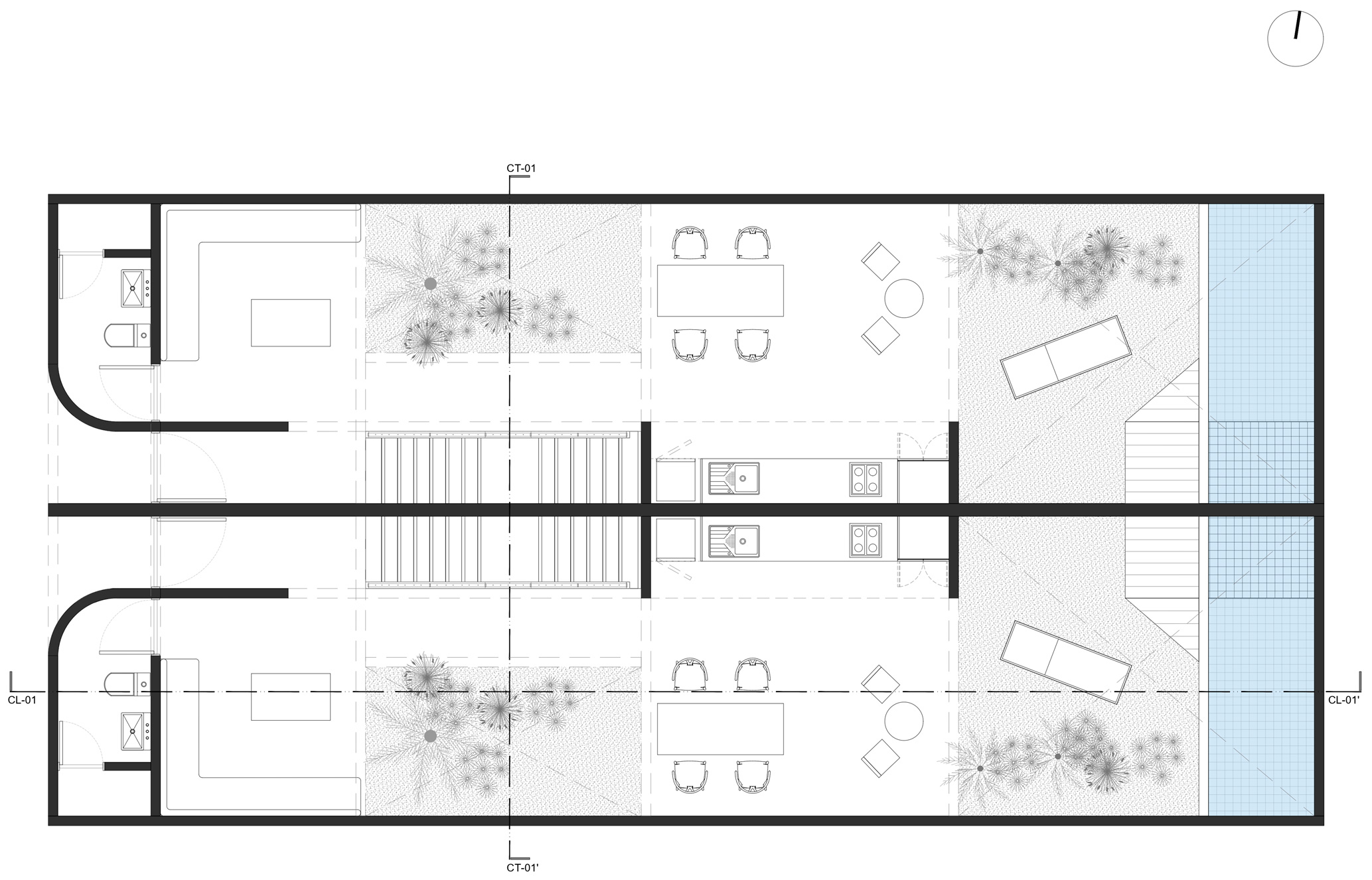
Ubicadas a unos metros de la playa, en un terreno de 10 x 20 metros, el proyecto consiste en dos casa gemelas y espejeadas con un sistema estructural a base de muros de carga que nos permite una fluidez espacial continua. Los elementos horizontales, de concreto, son de acabado aparente mientras que los muros se aplanarán con pasta tipo Chukum roja.
En la planta baja se encuentran los espacios comunes sobre los cuales flotan las dos habitaciones, permitiendo una buena separación entre lo público y lo privado. El patio interno permite una buena iluminación y genera amplitud en los espacios. En el tercer piso se encuentra una terraza desde el cual se pueden apreciar los atardeceres.
.jpg)































